- Project:
- WB Wohnanlage + CARITAS Integration
- Date:
- 2014
- Location:
- Deutschlandsberg A
- Photo:
- -
- ***:
© Render: p-run.com
STÄDTEBAULICHE SITUATION, LAGE, ERSCHLIESSUNG
Der Bauplatz befindet sich im östlichen Teil des Ortszentrums von Deutsch-landsberg, ist im Norden von der Bahnhofsstrasse begrenzt (Lage Bahn-damm), im Süden in Richtung Frauentalerstrasse orientiert.
Seine momentane Leerfläche ist ein weiterer Teil der sogenannten zentrumsnahen Siedlung Wohnbebauung ehem. „Solo-Gründe“.
Die umgebenden Baumassen weisen eine städtische Dichte ( Vorgabe Wert 0,5 - 1,5) auf, sind grossteils 3 bis 4 geschossig in Riegelform organisiert.
Das Gebiet ist verkehrstechnisch gut erschlossen – Nähe Ortskern, kommunale Einrichtungen - Zufahrten, Parkierung, Fuss- und Radwege, Anbindung öffentlicher Verkehr.
Der hammerförmigen Parzelle ist im Norden ein grösseres Objekt vorgelagert
= Schallschutz – der westliche Teil inTrapezform bildet den ersten Bauabschnitt – mit ca.3350 m2, Richtung Osten werden, sollen sich die nächsten Abschnitte entwickeln.
NEUE GESTALTUNG
Am 1. Bauabschnitt soll nun eine weitere Wohnanlage mit folgenden zwei, in Verbindung stehenden Nutzungen (gemeinsamer Baukörper) modelliert werden:
Intensiv Betreutes Wohnen als Pflegeeinrichtung der Caritas Steiermark, und als reines Wohnprojekt eine Anlage mit rund 22 Einheiten.
Nach Analyse der Funktionbedingungen und der programmatischen Vorgaben wurde folgender Ansatz entwickelt:
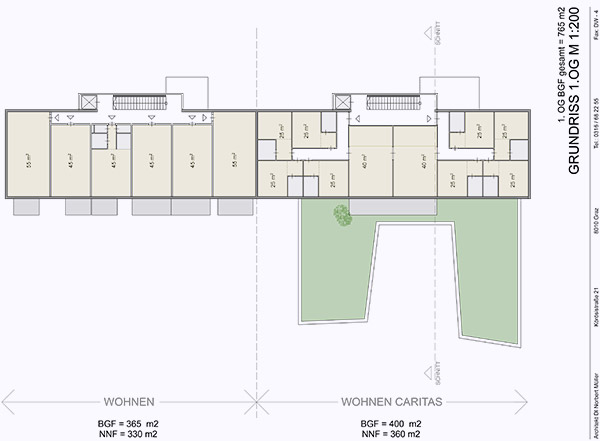
Die Betreuungseinheit Caritas ist am südwestlichen, grösseren Teil des Trapez-Grundstücks plaziert, das ermöglicht im Erdgeschoss eine U-förmige Organisation aller „öffentlichen“ Funktionen (Ankommen, Erschliessung, Ver-teilen, Gemeinschaftseinrichtungen, Büros) um einen grösseren Zentralraum, dem auch eine einsprechend
attraktive Freifläche – Hof, Patio – vorgelagert werden kann, inklusive bepflanztem Garten. Untergeordnete Funktionen(Waschkü.) können in eine Teilunterkellerung ausgelagert werden, die eigentliche Wohnfunktion wird in 2 Ebenen darüber organisiert –
Das ermöglicht räumliche Verbindung von horizontalen (Raum-programm) und vertikalen Abläufen (Erschliessung, Bewegungen) bei hoher Konzentration der Volumen.
Diese Synergie wird mit dem „überlagerten“ allgemeinen Wohnbau fortgesetzt - durchaus gewünschte soziale Durchmischung.
Nur mittels einer durchgehenden, horizontalen funktionellen Erschliessungs-achse im EG. von der Pflegeeinrichtung getrennt, wird der Wohnbau Richtung schmälerer Parzellenteil als rechteckige Form angesetzt; er verbindet sich in den Obergeschossen mit dem Caritasabschnitt und bildet so als Nordsüd – gerichteter Baukörper eine kompakte Einheit , die nur im südliche Erdge-schoss durch die andere Funktion eine klare Zesur erhält – räumlich funktion-elle Trennung , auch architektonisch.
Die Wohneinheiten sind den baulichen Vorgaben folgend im Norden 5 – geschossig organisiert, nach Süden auf 4 Ebenen gestaffelt – obere Bereich Penthäuser, Grosswohnungen mit entsprechenden Freiflächen;Grundrisse grossteils West/Ost-orientiert, vertikale Erschliessung im Osten vorgelagert, der Wohnungsschlüssel/Durchmischung wurde den Vorgaben entsprechend umgesetzt, die Dichte erlaubt rund 22 Einheiten im 1. BA., Richtung Osten können später weitere 4 Blöcke in ähnlicher Form/Organisation entwickelt werden.
Realisierung auf entsprechendem technischen und ökologischen Niveau – Konstruktion, Materialwahl (ev.Holz EG.),durch die Kompaktheit kostengünstige Umsetzung.
Die sozialen Inhalte sind als architektonisches Statement angelegt, gleichzeitig zukunfts-orientiert und zeitlos.